Menu

Description du bien immobilier

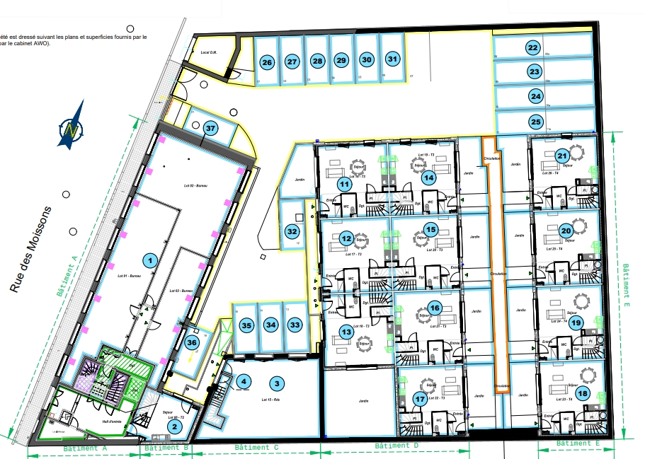
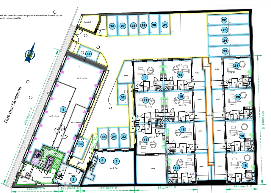
À VENDRE - RUE DES MOISSONS - REIMS - MAISON 4 PIECES - PARKING POSSIBLE Pouvoir agencer son propre bien dans un secteur recherché de Reims, voilà ce que propose cet ensemble immobilier tout juste sorti de terre. Située rue des Moissons, proche de toutes les commodités, venez découvrir cette maison vendue sous forme de plateau. La surface habitable avoisinant les 90 m², les options d'aménagement sont multiples. À titre d'exemple vous pourriez faire du rez-de-chaussée de 47m2 votre pièce de vie avec cuisine ouverte et à l'étage d'un total de 44m² votre espace nuit avec trois chambres, une salle de bains et WC séparés. Cette construction de qualité, sous garantie décennale, comprend déjà les huisseries, les volets électriques, les différents réseaux (eau, électricité, tout à l'égout), l'escalier menant à l'étage et l'aménagement du jardinet. Possibilité d'acquérir parking en sus à la demande! Sont inclus dans le prix des plans, des visuels, et des plans d'aménagement intérieur par une décoratrice à la demande de l'acquéreur potentiel, et donc sur mesure. Des solutions en conseil d'aménagement pourront vous être proposées par l'agence (devis, estimations, tous corps de métier). Copropriété en cours de création, Règlement de copropriété en cours de rédaction. Biens non soumis au DPE. Les informations sur les risques auxquels ce bien est exposé sont disponibles sur le site Géorisques : https://www.georisques.gouv.fr L'agence Les Clefs De L'Immobilier vous propose cette maison à Reims, contactez nous au 03.26.40.39.39 ou sur notre site www.lesclefsdelimmobilier.fr

Photosà la une

Maison 4 pièces à Reims - photo 1
Maison 4 pièces à Reims - photo 2
Maison 4 pièces à Reims - photo 3

Biens similaires à REIMS